Gladstone Road, Saltcoats
Sold
A well presented spacious new build property located within a popular residential part of Saltcoats.
Description
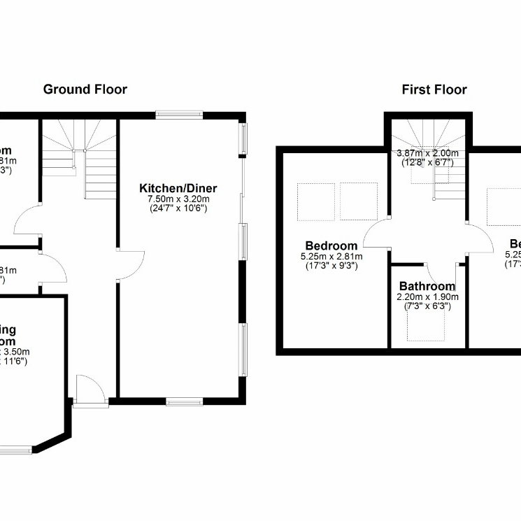
A well presented spacious new build property located within a popular residential part of Saltcoats. Internally and on the ground floor there is an entrance hallway, newly fitted kitchen / dining, Lounge, bedroom and W/c while on the first floor there are 2 double bedrooms and family bathroom. Further benefits include gas central heating and double glazing. Externally there is easy to maintain gardens with decked patio and driveway.
Entrance Hallway
Dining Kitchen 7.50m x 3.20m
Lounge 4.00m x 3.50m
Bedroom 3.40m x 2.80m
W/c 2.80m x 1.22m
Bedroom 5.25m x 3.30m
Bedroom 5.25m x 2.80m
Family Bathroom 2.20m x 1.90m
The Seaside Towns of Saltcoats, Ardrossan & Irvine offers a good selection of amenities including shops, schools, supermarket, restaurants and public transport services. Bus and rail services give regular links throughout the area to Glasgow if required. The A77/M77 also give easy links into the South side of Glasgow if required.
HOW MUCH IS YOUR HOME WORTH?
Click on our web site for a FREE personalised on-line valuation or,
For a totally free- no obligation market appraisal on your own property contact our sales team. We specialise in Sales & Lettings throughout Ayrshire
EPC rating: B
Council tax band: X
Tenure: Freehold

















